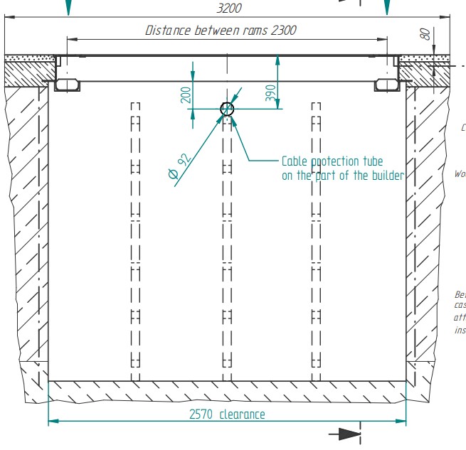
TWIN RAM YLÄKEHYS JA KASETTI 2-SYLINTERINOSTIMELLE 2300 MM GALV/MAALATTU
Kuumasinkitty yläkehys ja primeroitu upotuskasetti, nostimen upottamiseksi lattiaan. Yläkehys kantaa kuorman ja kasetti antaa suojan nostimelle.
Kuumasinkitty yläkehys ja primeroitu upotuskasetti, nostimen upottamiseksi lattiaan. Yläkehys kantaa kuorman ja kasetti antaa suojan nostimelle.
| Merkki: JAB Becker |
Dynaaminen pätkäsi näytetään tässä...
Tämä viesti näytetään, koska et ole antanut sekä suodatinta että mallia käytettäväksi.
Dynaaminen pätkäsi näytetään tässä... Tämä viesti näytetään, koska et ole antanut sekä suodatinta että mallia käytettäväksi.