C240 EL 2-PILARINOSTIN 4,0T SÄHKÖMEKAANINEN LATTIAVAPAA H616.00

https://www.diagno.fi/web/image/product.template/189118/image_1920?unique=21f4806

Yleisnostin henkilöautoille.

Mainiolla nostokyvyllä ja nostovarsilla varustettu nostin on kokoluokkansa suosituin. Tällä nostimella nostaa niin Smart For Twon kuin VW UPin ja pitkän Transportterin. Consul nostimiin saa erilaisia nostokorokkeita turvalliseen nostoon myös ajoneuvojen rungosta. 

  • Erikoisvalssatut nostopylväät
  • 6 rullalaakerilla varustettu nostokelkka
  • Pronssinen kuorma- ja turvamutteri
  • Öljyannostelija voitelun tueksi
  • Rikkoutuneen mutterin turvalukitus
  • Akustinen jalka-alueen suojaus
  • Soft-painikeohjaus tietokoneohjatulla tasausjärjestelmällä
  • Vaimentava oven pysäytin, säädettävä nostolevy (noin 25 mm)
  • Pylvään sisäpuoli peitetty
  • Automaattinen varren lukituslaite, lukittuu 300 millissä. 
  • Erittäin suosittu nostin kokoluokassaan. 
  • Made in Germany

Ei myynnissä

  • Merkki

Tätä yhdistelmää ei ole olemassa.

Merkki: Consul

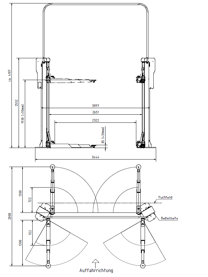
Tekniset tiedot

Kantavuus:

Nostokorkeus:

Nosto- ja laskuaika:

Nostotallan korkeus:

Nostovarren pituus etu:

Nostovarren pituus taka:

Asennusleveys:

Asennuskorkeus:

Pilarien vapaa sisäväli:

Läpiajoleveys:

Sähköjännite:

Moottoriteho:

Sulakkeet:

Lattialta vaadittavat ominaisuudet:



3500 kg

2005 mm

35 sekuntia

85 mm

650-1300 mm (3-osaiset nostovarret)

650-1300 mm (3-osaiset nostovarret)

3400 mm

2560 mm

2830 mm

2520 mm

400V /50Hz

2 x 3,0 kW

20A hidas sulake

210 mm (C20/25)

Dynaaminen pätkäsi näytetään tässä... Tämä viesti näytetään, koska et ole antanut sekä suodatinta että mallia käytettäväksi.