TWIN RAM YLÄKEHYS JA KASETTI 2-SYLINTERINOSTIMELLE 2300 MM GALV/MAALATTU

https://www.diagno.fi/web/image/product.template/134942/image_1920?unique=9328b9b

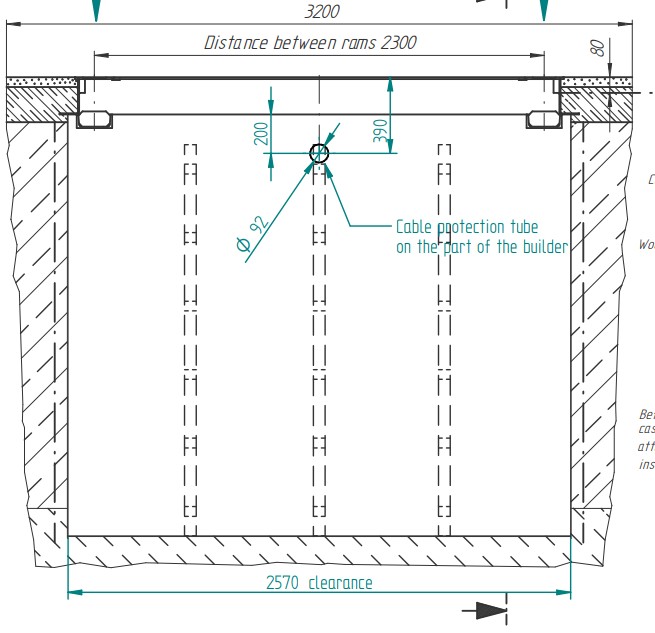
Kuumasinkitty yläkehys ja primeroitu upotuskasetti, nostimen upottamiseksi lattiaan. Yläkehys kantaa kuorman ja kasetti antaa suojan nostimelle.

Kuumasinkitty yläkehys ja primeroitu upotuskasetti, nostimen upottamiseksi lattiaan. Yläkehys kantaa kuorman ja kasetti antaa suojan nostimelle.

Ei myynnissä

  • Merkki

Tätä yhdistelmää ei ole olemassa.

Merkki: JAB Becker
Dynaaminen pätkäsi näytetään tässä... Tämä viesti näytetään, koska et ole antanut sekä suodatinta että mallia käytettäväksi.